Section 1.19
Cylinder Liner
The cylinder liner is of the replaceable wet type, made of hardened alloy cast iron, and is slip fit in the cylinder block.
Coolant in the cylinder block water jacket surrounds the cylinder liner and cools it directly. Coolant flow around the cylinder liner controls ring and liner temperature.
The cylinder liner is inserted into the cylinder bore from the top of the cylinder block. The cylinder liner flange fits into a counterbore in the cylinder block. See Figure "Cylinder Liner and Related Parts" .

|
1.Cylinder Liner |
3.Cylinder Liner O-rings |
|
2.Tomback Ring |
4.Cylinder Block |
Figure 1. Cylinder Liner and Related Parts
Two seal rings, recessed in the lower two cylinder liner grooves, are used to prevent coolant leakage between the cylinder liner and the cylinder block. A tomback ring is placed under the cylinder liner flange to create a seal between the cylinder liner and the cylinder block counterbore.
Section 1.19.1
Repair or Replacement of Cylinder Liner
To determine if repair is possible or replacement is necessary, perform the following procedure. See Figure "Repair or Replacement of Cylinder Liner Flowchart" .

Figure 2. Repair or Replacement of Cylinder Liner Flowchart
Section 1.19.2
Removal of Cylinder Liner
Pre-cleaning is not necessary.
NOTICE: |
|
The proper method must be followed when removing a cylinder liner. Damage to the cylinder liner and the cylinder block may occur if the proper tools and procedures are not used. |
Remove the piston and connecting rod as an assembly. Refer to "1.17.2 Removal of Piston and Connecting Rod" .
Remove the cylinder liner as follows:
- Mark the position of the cylinder liner in relation to the cylinder block.
- Ease the shoe of the cylinder liner removal tool, J 41543, down into the bottom of the cylinder liner. See Figure
"Cylinder Liner Remover"
.

Figure 3. Cylinder Liner Remover
- Place the shoe into the bottom edge of the cylinder liner.
- Turn the nut on the tool J 41543 clockwise to remove the cylinder liner from the block. See Figure "Cylinder Liner Remover" .
- Remove tomback ring or stainless steel seal ring from underside of the flange and discard.
- Remove tool J 41543 from the cylinder liner.
- Remove and discard the cylinder liner seals.
Note: Whenever cylinder liners are removed from an engine, they should be stored in an upright position. Cylinder liners left on their side for any length of time can become distorted, making installation difficult. If cylinder liners are to be reused, mark them so that they can be installed in the cylinders from which they were removed.
- Remove and discard tomback ring.
Section 1.19.3
Cleaning of Cylinder Liner
Clean the cylinder liner prior to inspection as follows:
NOTICE: |
|
If the cylinder liners are not to be installed at this time, oil them lightly with clean engine lubricating oil and store them upright in a clean, dry area. Do not allow the cylinder liners to rest on their sides and do not store anything on top of the cylinder liners. Cylinder liners left on their sides for any length of time can become egg-shaped and distorted, making installation in cylinder bores difficult or impossible. |
- Wash new and used cylinder liners with a strong detergent and warm water solution, scrubbing it with a non-metallic bristle brush.
- Rinse with hot water or steam.
To avoid injury from flying debris when using compressed air, wear adequate eye protection (face shield or safety goggles) and do not exceed 40 psi (276 kPa) air pressure.
- Dry the cylinder liner with compressed air.
- Coat the bore of the cylinder liner with clean engine lubricating oil.
- Allow the cylinder liner to sit for 10 minutes to allow the oil to work into the surface finish.
- Wipe the inside of the cylinder liner with clean, white paper towels.
- If a dark residue appears on the towels, repeat step 4 through step 6 until residue no longer appears.
Section 1.19.3.1
Inspection of Cylinder Liner
Inspect the cylinder liner as follows:
- Inspect the cylinder liner.
- Check the cylinder liner for cracks, freeting or scoring.
- If any cracks, fretting or scoring is detected, replace with a new cylinder liner.
- Check the cylinder liner for cavitation erosion. See Figure "Cavitation Erosion" .
- If cavitation erosion occurs, replace with a new cylinder liner. Refer to "1.19.4 Installation of Cylinder Liner" .
NOTICE:
Series 55 engine cylinder liners are honed at the factory with a process that cannot be duplicated in the field. For this reason, honing of used cylinder liners should not be attempted.

1.Cracks
3.Erosion
2.Cylinder Liner
Figure 4. Cavitation Erosion
NOTICE:
Erosion results from poor cooling system maintenance. If uncorrected, it will eventually make holes through the cylinder liner. This can cause combustion gases to blow water out of the radiator. It can also cause oil in the coolant or, when the engine is stopped, water to flow into the cylinder.
Note: If new piston rings are being installed, a new cylinder liner must also be installed. Refer to "1.19.4 Installation of Cylinder Liner"
- Inspect the cylinder liner flange.
- Check the cylinder liner flange for cracks or fretting. Ensure that both the top and bottom surfaces of the flange are flat and not rounded, tapered, or warped. Check the machined grooves in the cylinder liner flange for damage.
- If any of these conditions exist, replace the cylinder liner. Refer to "1.19.4 Installation of Cylinder Liner" .
- Inspect the cylinder block bore. Refer to "1.1.2.1 Inspection of Cylinder Block Bore"
.
Note: Stabilize temperature of gauge and cylinder liner at 22° C (72° F) before measuring.
- Inspect the outside diameter of the cylinder liner.
- Check the outside of the cylinder liner for fretting.
- If any fretting is found, replace with a new cylinder liner.
- Measure the outside diameter of the cylinder liner. See Figure
""

Figure 5.
- If the cylinder liner does not meet specifications, replace with a new cylinder liner. Refer to "1.19.4 Installation of Cylinder Liner"
.
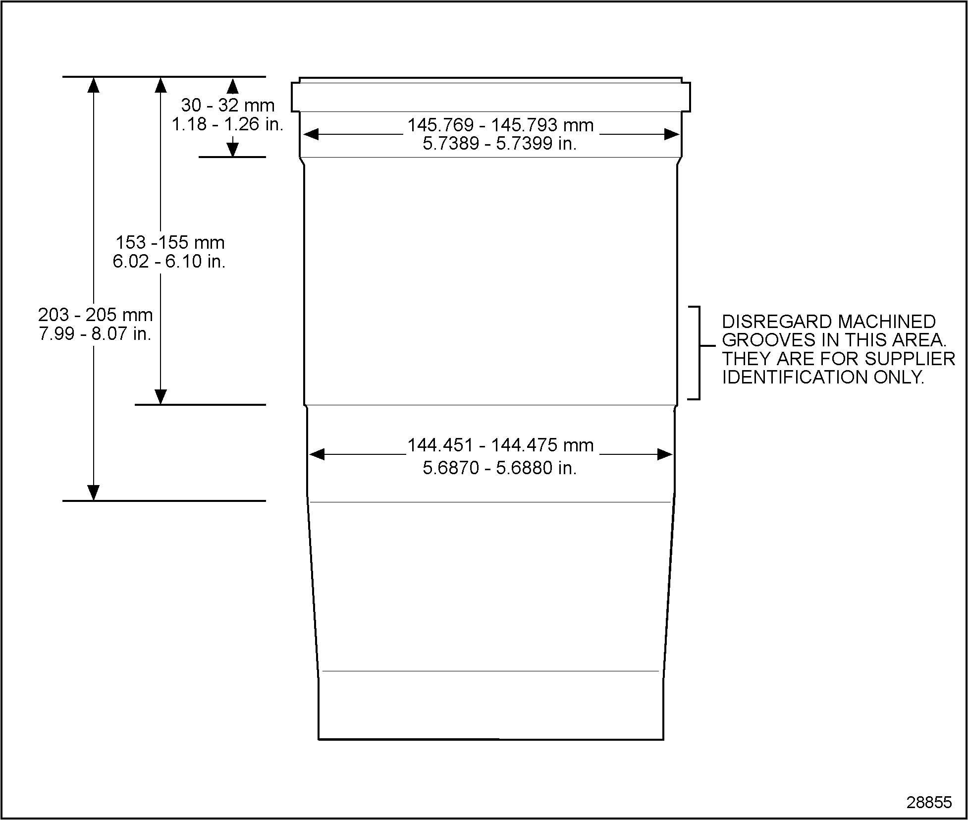
Note: The matching of the piston and cylinder liner sizes is critical when installing new pistons or cylinder liners. See Figure "Cylinder Liner Measurement Diagram"

Figure 6. Cylinder Liner Measurement Diagram
- Inspect the cylinder liner inside diameter.
- Measure and record the cylinder liner inside diameter with a cylinder bore gauge, J 5347–B
. Set the cylinder bore gauge on zero in master setting fixture. The cylinder liner inside diameter should be measured in 90° axes, front-to-rear, and side-to-side. In each axis, the cylinder liner needs to be measured in four different positions. See Figure
"Cylinder Liner and Piston Grading"
There is a letter stamped in the fire dam of each cylinder liner. The stamping is toward the front of the engine when assembled at the factory. The stamping will be either "A", "B" or "C". Use this stamping to determine which inside diameter dimensions should be used to determine whether the cylinder liner should be reused or replaced. Also, check the cylinder liner for taper and out-of-round.

Figure 7. Cylinder Liner and Piston Grading
- If any of the measurements are not within the specification, See Figure "Cylinder Liner and Piston Grading" , the cylinder liner must be replaced. Refer to "1.19.4 Installation of Cylinder Liner" .
- If the cylinder liner taper or out-of-round measurements exceed 0.04 mm (.0016 in.), replace with a new cylinder liner. Refer to "1.19.4 Installation of Cylinder Liner" .
- Measure and record the cylinder liner inside diameter with a cylinder bore gauge, J 5347–B
. Set the cylinder bore gauge on zero in master setting fixture. The cylinder liner inside diameter should be measured in 90° axes, front-to-rear, and side-to-side. In each axis, the cylinder liner needs to be measured in four different positions. See Figure
"Cylinder Liner and Piston Grading"
There is a letter stamped in the fire dam of each cylinder liner. The stamping is toward the front of the engine when assembled at the factory. The stamping will be either "A", "B" or "C". Use this stamping to determine which inside diameter dimensions should be used to determine whether the cylinder liner should be reused or replaced. Also, check the cylinder liner for taper and out-of-round.
- Check the thickness of the cylinder liner flange.
- The cylinder liner flange thickness must be within 10.10–10.12 mm (.3976–.3984 in). See Figure
"Cylinder Liner Seals"
.

Figure 8. Cylinder Liner Seals
- The cylinder liner flange thickness must be within 10.10–10.12 mm (.3976–.3984 in). See Figure
"Cylinder Liner Seals"
.
Section 1.19.4
Installation of Cylinder Liner
Install the cylinder liner as follows:
- Wipe the inside and outside of the cylinder liner clean. Ensure that the block bore and counterbore are clean. The block counterbore depth must be 9.96-10.00 mm (.3921-.3937 in.). Check the counterbore depth in several locations to verify counterbore is flat.See Figure
"Measuring Counterbore Depth"
.

Figure 9. Measuring Counterbore Depth
Note: Thoroughly clean the cylinder block liner counterbores to remove any foreign material. Foreign material in the cylinder liner counterbores can cause the cylinder liner to seat improperly.
- Lubricate the new cylinder liner seal rings with clean petroleum jelly.
- Install new cylinder liner seal rings.
Note: The orange cylinder liner seal ring is installed in the upper groove of the cylinder block. The green or light blue seal ring is installed in the lower groove of the cylinder block.
- Install a new tomback ring, or stainless steel ring. Do not mix tomback and stainless seal rings on the same engine.
- If the cylinder liner is new, position with the size code letter stamping "A", "B" or "C" towards the front of the cylinder block. This will serve as a reference to turn the cylinder liner 90° at some future assembly. If the cylinder liner is being reused, rotate it 90° counterclockwise from its former position prior to inserting it into the cylinder block bore.
- Insert the cylinder liner into the cylinder bore.
Note: Do not exert excessive force on the cylinder liner while pushing it down.
- Install the cylinder liner installation tool, J 41441, over the cylinder. See Figure
"Cylinder Liner Installer"
.

1.Bolt
Figure 10. Cylinder Liner Installer
Note: Leave the cylinder liner installer in place until after liner protrusion is measured.
- Center the tool over the cylinder liner, and thread four cylinder head bolts through the tool and into head bolt holes.
- Tighten the bolts.
Note: It is not necessary to torque the bolts.
- Turn the threaded center bolt clockwise. As the round shoe of the tool reaches the cylinder liner, ensure the shoe is fitting properly into the cylinder liner.
- Continue tightening the bolt until the cylinder liner bottoms in the cylinder counterbore. Torque the center bolt to 60 N · m (44 lb · ft)
- Install a dial indicator sled gage. See Figure
"Measuring Cylinder Liner Protrusion"
.

1.Test Fixture
2.Dial Indicator Sled gage
Figure 11. Measuring Cylinder Liner Protrusion
- Measure the distance from the top of the cylinder liner flange to the top of the block. See Figure
"Measuring Cylinder Liner Protrusion"
.
- Allowable liner protrusion is 0.31 mm (.0122 in.) maximum, 0.25 mm (.0098 in.) minimum.
- If the liner protrusion exceeds the maximum allowable limit, remove the liner, and check for debris under the liner flange.
- If the liner protrusion exceeds the minimum allowable limit. Change tomback ring. Check the thickness of the cylinder liner flange which has to be within 10.10 mm (0.3976 in.) and 10.12 mm (0.3984 in.). If this didn't help, then replace liner.
- Check the cylinder liner diameter for out-of-round in the area of the cylinder liner seals.
- Measure the cylinder inside diameter in the area of the cylinder liner seals with a cylinder bore gauge, J 5347–B
. Set the cylinder bore gauge on zero in the master setting fixture. Measure at three points, 60° from each other. See Figure
"Out-of-Round Measurement"

Figure 12. Out-of-Round Measurement
- If out-of-round measurements exceed 0.04 mm (.0016 in.), remove cylinder liner and check seals and sealing grooves for damage. Ensure cylinder liner and bore are free of nicks, burrs and dirt and seals are clean.
- Install cylinder liner and check the cylinder liner out-of-round measurements again. If cylinder liner still does not meet out-of-round specifications, replace seals. Refer to "1.19.4 Installation of Cylinder Liner" .
- Measure the cylinder inside diameter in the area of the cylinder liner seals with a cylinder bore gauge, J 5347–B
. Set the cylinder bore gauge on zero in the master setting fixture. Measure at three points, 60° from each other. See Figure
"Out-of-Round Measurement"
| Series 55 Service Manual - 6SE55 |
| Generated on 10-13-2008 |