Section 82.5
Troubleshoot Exhaust Gas Temperature
Follow these procedures to troubleshoot exhaust gas temperature:
Section 82.5.1
Check for Open
Typically, the exhaust gas temperature circuit failed high is caused by an open signal or short to battery+. Perform the following steps to troubleshoot code p 173/3:
- For low volt code (82) disconnect the ETS connector.
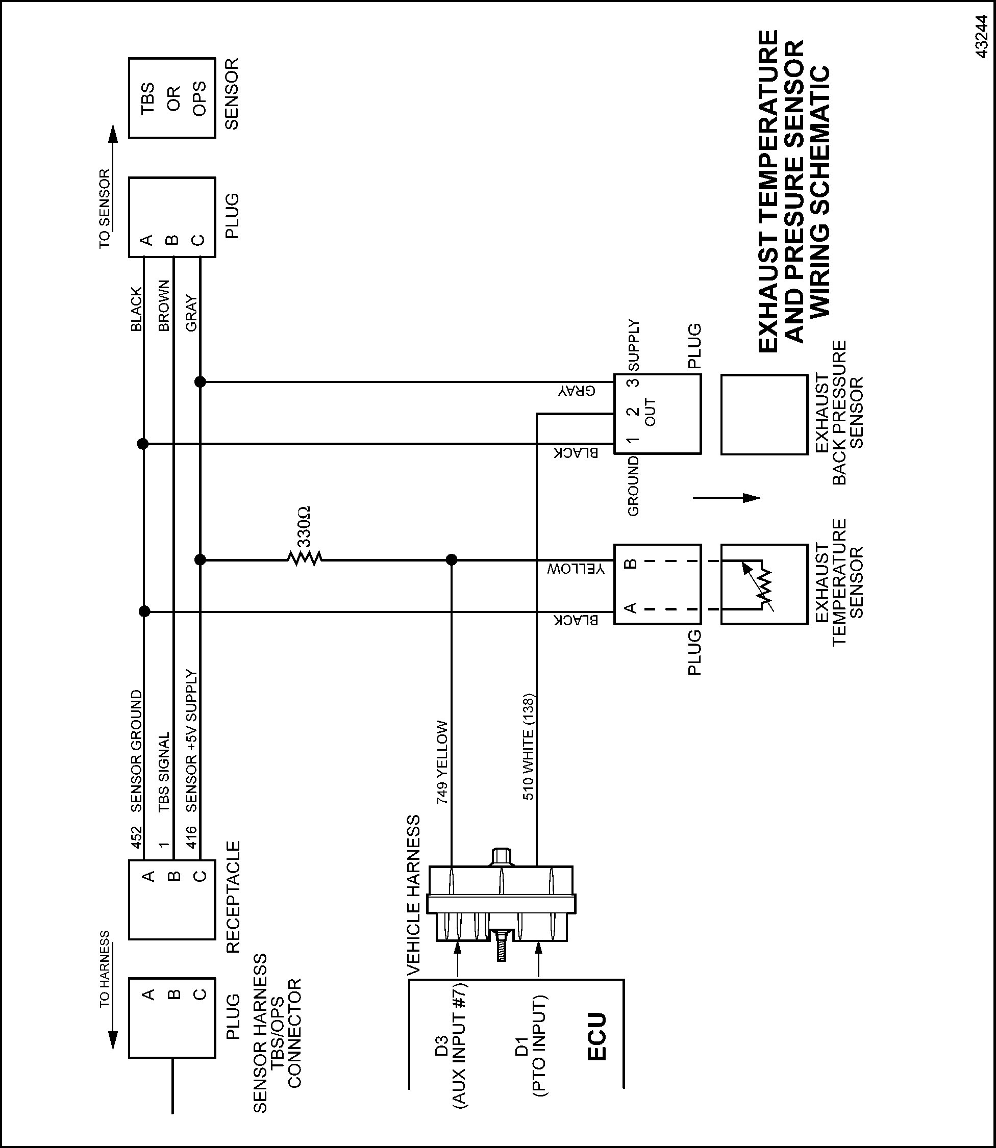
- Install a jumper wire between the two pins at the ETS.See Figure "Exhaust Temperature and Pressure Sensor Wiring Schematic" .
- Unplug both 30–pin connectors at the ECM. See Figure "Exhaust Temperature and Pressure Sensor Wiring Schematic" .
- Measure resistance between D3 of the VIH connector and W1 of the ESH connector. See Figure
"Exhaust Temperature and Pressure Sensor Wiring Schematic"
.
- If resistance measures < 5 Ω, refer to "82.5.2 Check for Short" .
- If resistance is > 5 Ω, either the circuit #416 is opened, or #749 is opened. Repair the open or replace the wire and test. Refer to "82.5.4 Test" .

Figure 1. Exhaust Temperature and Pressure Sensor Wiring Schematic
Section 82.5.2
Check for Short
Perform the following steps to check for a short:
- Remove the jumper.
- Measure resistance again between D3 and W1. See Figure
"Exhaust Temperature and Pressure Sensor Wiring Schematic"
.
- If the reading is > 400 Ω, the resistor between circuit #416 and #749 has failed. Replace the resistor or replace the harness.
- If the reading is < 400 Ω, replace the ETS, and refer to "82.5.3 Check for Short to Ground" .
Section 82.5.3
Check for Short to Ground
Perform the following steps to check for short to ground:
- Measure the resistance between cavity #D3 and ground (battery and block). See Figure "Exhaust Temperature and Pressure Sensor Wiring Schematic" .
- Measure the resistance between cavity #W1 and ground (battery and block).
- If any readings are less than 5 Ω, that wire is shorted to ground. Repair or replace the wire and test. Refer to "82.5.4 Test" .
- If both readings are greater than 5 Ω, replace ETS and test. Refer to "82.5.4 Test" .
Section 82.5.4
Test
Perform the following steps to test the repair:
- Connect all removed connectors.
- Start and run the engine.
- Perform road test.
- Plug in DDR and read active codes.
- If no codes display, repairs are complete.
- If code 81 displays, review the procedure for checking exhaust gas temperature circuit failed high; refer to "82.5.1 Check for Open" . If this is the second time through the procedure, call DDC Technical Service, or try a test ECM.
| DDEC III/IV Single ECM Troubleshooting Guide - 6SE497 |
| Generated on 10-13-2008 |