Section 1.10
Piston and Piston Ring
The Turbotronic 638 piston is a one-piece design. It is connected to the connecting rod by a piston pin. See Figure "Piston and Related Parts" .

|
1.Fire Ring |
5.Cylinder Liner |
|
2.Compression Ring |
6.Piston Pin |
|
3.Oil Scraper Ring |
7.Spring Ring |
|
4.Piston |
|
Figure 1. Piston and Related Parts
Internal parts of the piston are lubricated and cooled by the engine lubricating oil. Oil is sprayed to the underside of the piston from a nozzle located within the main bearing carrier. A portion of the oil lubricates the piston pin and bearing.
Section 1.10.1
Repair or Replacement of Piston and Piston Ring
To determine if repair or replacement of the piston and piston ring is necessary, perform the following procedure. See Figure "Flowchart for Repair or Replacement of Piston and Piston Ring" .

Figure 2. Flowchart for Repair or Replacement of Piston and Piston Ring
Section 1.10.2
Disassemble of Piston and Piston Ring
Disassemble the piston assembly as follows:
- Remove the piston and connecting rod. Refer to "1.9.2 Removal of Piston and Connecting Rod" .
- Secure the piston and connecting rod in a soft-jawed vise.
- Remove two spring rings securing the piston pin. See Figure
"Removal of Piston Ring Set "
.

1.Fire Ring
5.Cylinder Liner
2.Compression Ring
6.Piston Pin
3.Oil Scraper Ring
7.Spring Ring
4.Piston
Figure 3. Removal of Piston Ring Set
- Push piston pin out of piston and connecting rod. See Figure
"Removal of Piston Ring Set "
.
Note: Soak piston in hot water to aid removal of the piston pin, if necessary.
- Using a suitable ring expander, remove the fire ring, compression ring, and oil scraper ring. See Figure "Removal of Piston Ring Set " .
Section 1.10.2.1
Cleaning of Piston and Piston Rings
Clean the piston as follows:
- Remove carbon from the piston crowns and skirts.
- Remove carbon from the oil scraper ring groove to ensure that the oil holes are not clogged using clean fuel oil.
To avoid personal injury when blow drying, wear adequate eye protection (safety glasses or face plate) and do not exceed 276 kPa (40 lb/in. 2 ) air pressure.
- Dry the components with compressed air.
Section 1.10.2.2
Inspection of Piston and Piston Rings
Inspect the piston and piston rings as follows:
- Measure piston perpendicular to the piston pin at approximately 15 mm (0.60 in.) above the base of the piston skirt. See Figure
"Measuring Piston Perpendicularity"
.
- If piston diameter is less than 91.935 mm (3.6194 in.), replace the component. Refer to "1.10.3 Installation of Piston and Piston Ring" .
- If piston diameter is within 91.935-91.945 mm (3.6194- 3.6198 in.), proceed with step 2 of inspection.

Figure 4. Measuring Piston Perpendicularity
- Measure the piston to cylinder clearance.
- If piston to cylinder liner clearance exceeds 0.25 mm (.0098 in.), replace the component. Refer to "1.10.3 Installation of Piston and Piston Ring" .
- If piston to cylinder liner clearance is within 0.20-0.25 mm (0.0078-0.0098 in.), proceed with step 3 of inspection.
- Measure for out-of-round piston pin bore.
- If the piston pin bore exceeds 0.05 mm (.00196 in.), replace the component. Refer to "1.10.3 Installation of Piston and Piston Ring" .
- If the piston pin bore is less than 0.05 mm (.00196 in.), proceed with step 4 of inspection.
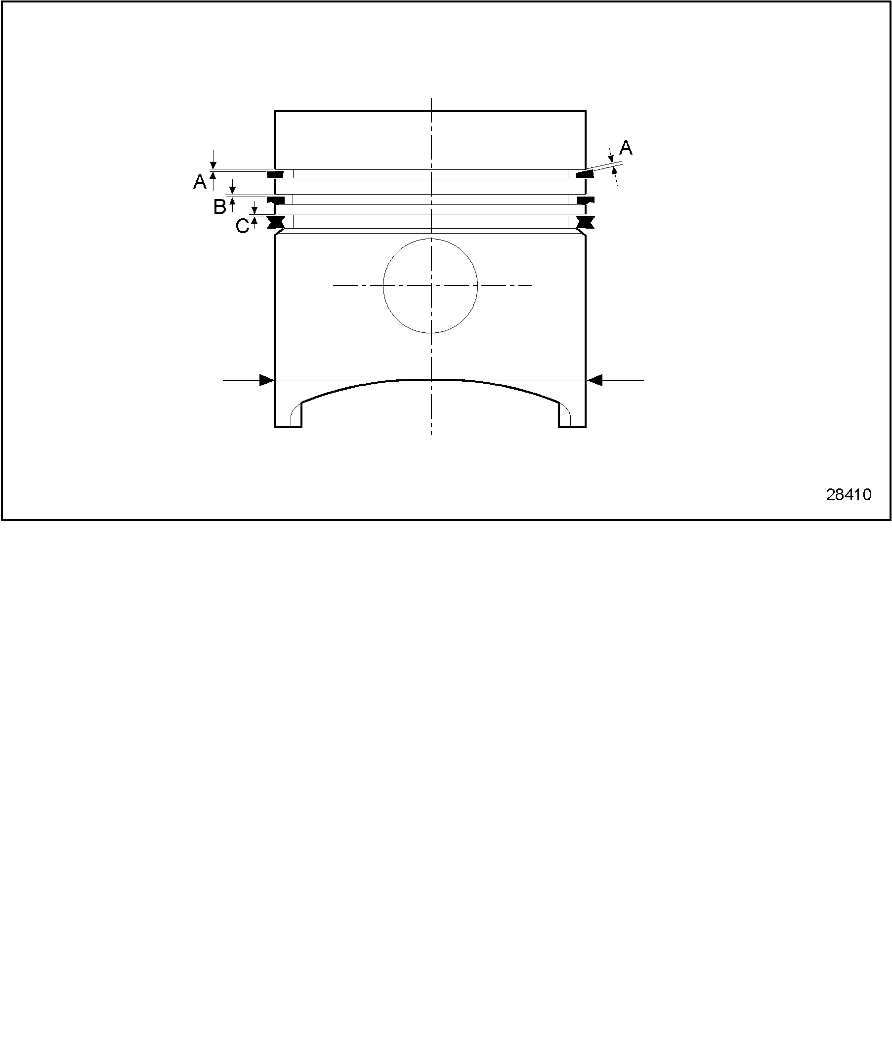
- Measure piston rings and compare measured values to the specification values listed in Table
"Piston Ring Specifications"
.
- If the piston rings are not within specifications, replace component. Refer to "1.10.3 Installation of Piston and Piston Ring" .
- If the piston rings are within specifications, reuse component. Refer to "1.10.3 Installation of Piston and Piston Ring" .
Piston Ring
Ring Seat Height
Ring Thickness
Clearance
Ring Gap
Fire Ring
2.175-2.205 mm(.0856-.0868 in.)
2.075-2.095 mm(.0817-.0829 in.)
0.080-0.130 mm(.0031-.0051 in.)
2.175-2.205 mm(.0856-.0868 in.)
Compression Ring
2.060-2.080 mm(.0813-.0818 in.)
1.978-1.990 mm(.0779-.7834 in.)
0.070-0.102 mm(.0028-.0040 in.)
2.175-2.205 mm(.0856-.0868 in.)
Oil Scraper Ring
4.030-4.050 mm(.1586-.1594 in.)
3.978-3.990 mm(.1566-.1571 in.)
0.040-0.072 mm(.0016-.0028 in.)
2.175-2.205 mm(.0856-.0868 in.)
Table 4. Piston Ring Specifications
Section 1.10.3
Installation of Piston and Piston Ring
Install the piston and piston ring as follows:
- Install the oil scraper ring, compression ring, and fire ring to the piston. See Figure
"Installation of Piston Ring Set"
.

1.Fire Ring
5.Cylinder Liner
2.Compression Ring
6.Piston Pin
3.Oil Scraper Ring
7.Spring Ring
4.Piston
Figure 5. Installation of Piston Ring Set
- Secure the connecting rod in a soft-jawed vise.
- Place piston onto the connecting rod and insert piston pin. See Figure "Installation of Piston Ring Set" .
- Install two spring rings and secure the piston to the connecting rod.
- Install the piston and connecting rod. Refer to "1.9.3 Installation of Piston and Connecting Rod" .
- Run engine to verify repairs.
| Series 638 Service Manual - 6SE648 |
| Generated on 10-13-2008 |